邮箱登陆   联系我们
HUAQI TECH
为客户创造价值

内进流超细截污格栅

发布者:华骐环保 发布时间:2022-05-06  

05/06
2022
内进流超细截污格栅(SupFTM)简介

内进流超细截污格栅(SupFTM)示意图

内进流超细截污格栅(SupFTM)是一种将拦污和除污融合于一体的高效率超细截污设备,SupFTM完美(中国)运行时可连续自动拦截、过滤及清除水体中的悬浮物,适用于污水处理厂,能有效去除过滤水体中的杂草、纸张、烟蒂、落叶、毛发、纤维物、絮状软性物等悬浮物。
近年来,随着污水排放标准的不断提高,BAF工艺及MBR工艺对预处理(高效去除毛发和纤维物质等)的要求,过滤精度1-5mm内进流超细截污格栅被广泛采用。

SupFTM完美(中国)结构与功能原理


内进流超细截污格栅(SupFTM)功能结构图

SupFTM完美(中国)结构:主要由驱动设备、主体机架、外壳、链轮链条、过滤孔板、冲刷体系、系统密封件、滤渣收集部件、及电气控制柜等部件构成。

SupFTM过滤原理:需过滤的污水从格栅进口框架中间进入格栅内部,污水从格栅两侧穿过孔板流出,毛发、纤维等悬浮物质被截留在孔板的内侧,当冲刷体系运行时把截留在内壁上的物质向上提升至顶部;顶部板外侧上面的中高压反冲洗系统通过压力水对过滤孔板进行自动冲洗,把截留的滤渣物质冲刷到过滤孔板内侧下面的收集水槽里面,最后由输送水槽自流至滤渣压榨机进行压榨脱水处理。整个过滤过程及压榨脱水是在连续的、自动的状态下进行的。

SupFTM的除污优点

· 过滤面积大,结构紧凑,占地面积小

· 针对常规过滤孔板间密封效果差导致的纤维状物质穿过的问题,开发了专有密封连接技术

· 针对导轨与链轮缝隙密封效果差导致的纤维状物质穿过的问题,设有二次密封专有技术,确保无滤渣穿透到栅后

· 针对短纤维状物质易挂孔及透过过滤孔板的问题,根据水力学计算,开发了独特不堵塞的锥边过滤孔板

· 能适应进水液位波动,水头损失小

· 智能自动化中高压反洗系统,液位差/周期性联动智能控制

· 针对超宽设备的受水压导致的变形问题,开发了中部轨道反向着力结构,增强运行平稳性,增加使用寿命

· 采用轻巧及易拆装的盖板进行密封,便于拆装、防臭

· 独特刮板设计,可有效清除滤渣收集槽边口残留物

SupFTM的除污优点


锥形过滤孔
短纤维不易透过及堵塞滤孔


中高压全覆盖
智能喷射冲洗洁净


标准化、模块化
生产制造的精细过滤孔板


可独立更换
持续保证密封效果的过滤孔板


导轨处硬质密封与软性密封
双重保护密封效果


内置高效清洁刮板
确保再次清洁

SupFTM完美(中国)参数选型

SupFTM参数选型表


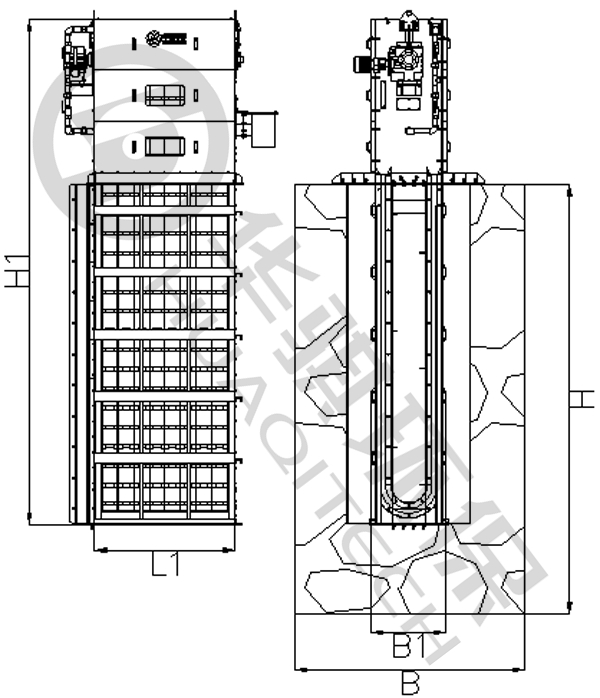
SupFTM外形尺寸图


SupFTM完美(中国)


SupFTM完美(中国)图


SupFTM完美(中国)图


SupFTM应用于BAF工艺


SupFTM的压榨机及其配套